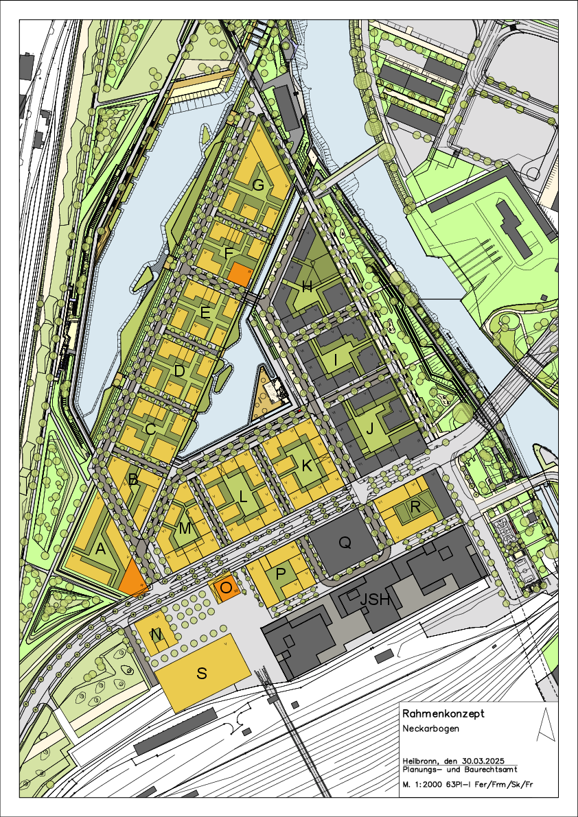
Rahmenplan Neckarbogen
Im Januar 2014 hat der Gemeinderat der Fortschreibung des städtebaulichen Rahmenplans zur Entwicklung des Quartiers Neckarbogen zugestimmt. Ihr zugrunde lag die Urfassung vom Juli 2010, die erstmals formulierte, wie zum Beispiel eine Bebauung sowie die verkehrliche Erschließung aussehen könnte. Im Rahmenplan für das rund 25 Hektar große Areal ist eine fünf- bis zehngeschossige Bebauung vorgesehen. Kleine Erschließungsstraßen sollen in einem Rundkurs durch das Quartier führen. Als zentrale Erholungsflächen werden der Floßhafen und der Karlssee in das Quartier eingebunden. Der Neckaruferpark und die Kraneninsel mit Stadtdschungel stellen die Verbindung zur Innenstadt her.
Die städtebaulichen Rahmenbedingungen und gestalterischen Vorgaben für die weiteren Bauvorhaben werden auch künftig durch das Baudezernat erarbeitet und bilden eine wichtige Grundlage für die weitere Bebauung. Die Parzellierung sowie die städtebaulichen Anforderungen an die einzelnen Baufelder, der Bedarf an sozialen Einrichtungen und die baulandpolitischen Zielsetzungen werden in den einzelnen Verfahren konkretisiert und bekanntgegeben.
Der Rahmenplan und das Gestaltungshandbuch zum Neckarbogen lassen den interessierten Planern einen größtmöglichen Spielraum für ihre individuellen Bedürfnisse. Ziel ist es, eine Balance zwischen Gemeinschaft und Individualität, zwischen Regel und Ausnahme zu finden.



